Nordpeis Praha -takka on kolmilasinen kiertoilmatakka, jossa on suuri tulinäkyvyys ympärille. Takan etuosassa on vakiona käytännöllinen halkotila.
Tämä takka on parhaimmillaan suoralle seinälle asennettuna niin, että tulinäkyvyydestä voidaan nauttia laajasti joka puolelta, sillä tulinäkyvyys on n. 180°!

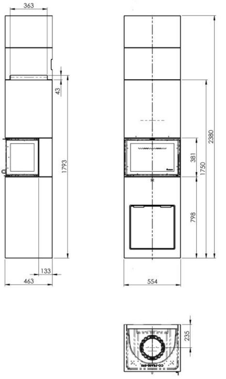
Praha on vakiokorkeudeltaan 1750 mm, mutta siihen on saatavilla korotusosa, joka korottaa tämän takan 2380 mm korkeaksi!

Takan toimitukseen sisältyy suojaseinäsarja, jonka avulla takka voidaan asentaa 0 mm suojaetäisyydellä (taakse) tulenarkaan materiaaliin.
Takan pinta on erikoisbetonia, joka voidaan pinnoittaa asennuksen jälkeen halutulle värisävylle maalaamalla. Näin saat takasta juuri sopivan sinun huoneeseesi!
Mikäli etsit mallia, joka on todella samanlainen kuin Praha, mutta ilman halkotilaa, niin Nordpeis Cannes on etsimäsi vaihtoehto.
Lisävarusteena saatavilla:
– Tuhkalaatikko
– PowerStone -lämpömakasiini (52 kg)
– Lattian kipinäsuojalasi
– Paloilman liitäntäsarja
– Savuhormin liitossarja
Unelmauuneilta takan lupapalvelut sekä vanhan tulisijan purku ja uuden asennus yli 30 vuoden kokemuksella – myös osamaksulla jopa 12 kk korottomalla maksuajalla!
Tekniset tiedot Nordpeis Praha:
Korkeus (mm): 1750 (matala malli) / 2380 (korkea malli)
Leveys (mm): 554
Syvyys (mm): 463
Hormiliitos: Päältä, Takaa
Paino: 253 kg (matala malli) / 317 kg (korkea malli)
Nimellisteho: 5,4 kW
Polttopuiden max. pituus: 40 cm
Savukanavaliitäntä: Ø 150 mm
Palamisilmaliitäntä: Kyllä
Hyötysuhde: 81,9 %
Nordpeis Praha mitat
Nordpeis Praha korkea mitat
Nordpeis Praha suojaetäisyydet
Hinnat
Hinnat sisältävät alv 25,5 %
HUOM! Tuotekohtaisiin hintoihin lisätään AINA kulloinkin voimassa oleva rahtimaksu.
| Praha, musta Exclusive-ovi, musta karmi & lasinreunus, Exclusive-kahva, Concrete Shape Stone Light | 4 950 € |
Lisävarusteet Nordpeis Praha:
| korotusosa | 460 € |
| lattialevy kirkasta lasia | 287 € |
| PowerStone-lämpömakasiini (52kg), Vain takaliitäntä! | 229 € |
| Puinen kädensija tulipesään | 57 € |
| tuhkalaatikko | 150 € |
| paloilmaliitäntä: putki 80mm ja kondenssieriste | 150 € |
| paloilmaliitäntä: sokkelin/seinän läpivientisarja | 89 € |
| Betonimaali | 43 € |
Valmistajan kotisivut: https://nordpeis.fi/