LEDA PEPPA -takka on huippulaadukas, saksalainen valurautatakka.
Pieni ja kaunis PEPPA on sympaattinen, mutta omaa todella suuren tulipesän pieneen kokoonsa nähden.
– Pieni, solakka takka valurautarungolla ja kokolasiovella (tuplalasi), laadukas kahva ruostumatonta terästä
– Nimellisteho 4 kW (toinen tutkittu lämmöntuotto: 6 kW)
– Värivaihtoehtoina musta maalattu matta sekä valkoinen, vihreä, sinimusta tai petrooli kiiltävä emalipinta.

Unelmauuneilta takan lupapalvelut sekä vanhan tulisijan purku ja uuden asennus yli 30 vuoden kokemuksella – myös osamaksulla jopa 12 kk korottomalla maksuajalla!
Tekniset tiedot:
Tyyppi: valurautakamiina
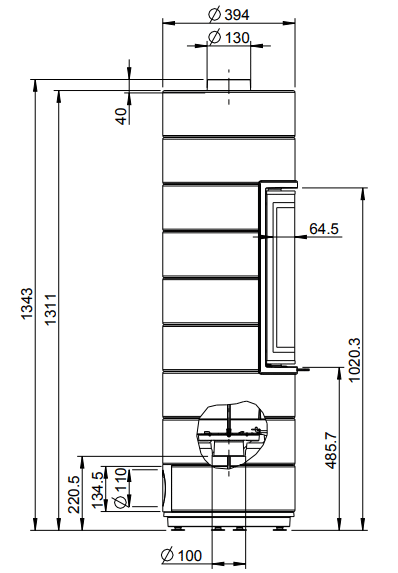
Korkeus 1311 mm
Leveys 394 mm
Syvyys 394 mm
Hyötysuhde 81 %
Energiamerkintäluokka A+
Nimellisteho 4–6 kW
Hormiliitoshalk. 130 mm (päältäliitos)
Paino 250 kg
Turvaetäisyydet palaviin materiaaleihin (sivu/taakse/eteen): 400 mm/350 mm/800 mm
Puuklapin max. pituus 25 cm
Tulipesän koko K/L/S mm 610 x 270 x 250
Palamisilman säätöventtiili
Korvausilmaliitosistukka halk. 100 mm
Leda Peppa suoritustasoilmoitus
Leda Peppa -takka mitat
Leda Peppa -takka suojaetäisyydet
Leda Peppa -takka suojaetäisyydet luukun edessä
Hinnat
Hinnat sisältävät alv 25,5 %
HUOM! Tuotekohtaisiin hintoihin lisätään AINA kulloinkin voimassa oleva rahtimaksu.
| PEPPA, musta maali, hormiliitos päällä | 4 600 € |
| PEPPA, valkoinen emali (kiiltävä), hormiliitos päällä | 5 920 € |
| PEPPA, tummanvihreä emalipinta (kiiltävä), hormiliitos päällä | 6 230 € |
| PEPPA, sinimusta emalipinta (kiiltävä), hormiliitos päällä | 6 230 € |
| PEPPA, petrooli emalipinta (kiiltävä), hormiliitos päällä | 6 230 € |
Lisätarvikkeet:
| Kääntölevy, Ø 130 mm, sis.kääntyvä istukka | 815 € |
| Sähköinen palamisavustin (LED-valo) PEPPA | 250 € |
| Päästöjen vähennyssetti „tec“ | 700 € |
| (sähköinen palamisavustin + katalysaattori) |
Valmistajan alkuperäiset kotisivut: https://www.leda.de/en