Contura 800 Style -takkasarjan mallit ovat tyylikkäitä ja sulavalinjaisia takkoja varustettuna kätevillä vakio-ominaisuuksilla, jotka tekevät tulen sytyttämisestä ja takkojen käyttämisestä vaivatonta.
Contura 800 Style -sarja on saavuttanut äärimmäisen suuren suosion niin uudiskohteissa, vapaa-ajan asunnoissa kuin myös saneerauskohteissa. Contura 800 Style -sarja voitti vuonna 2020 arvostetun kansainvälisen IF Design Award -muotoilupalkinnon.
Kiertoilmatakka imee viileää huoneilmaa rakenteisiinsa ja puhaltaa sen lämpimänä ulos välittömästi. Lämpöä ei tarvitse odottaa ja se leviää itsestään nopeasti laajalle alueelle.
Paloilma on helposti säädettävissä luukun alapuolella sijaitsevasta säätimestä.
Kuuma palamisilma huuhtelee lasin sisäpinnan ja pitää sen puhtaampana. Tämän ansiosta voit tummien lasien sijaan nauttia kirkkaan tulen loimusta. Puhdaspalotekniikka pitää myös takan päästöt pienenä ja tehot isona.
Tulipesän alla on tilaa polttopuille. Voit hankkia myös puutilan oven, mikäli suosit puuhalkojen olevan piilossa.
Automatic Start Function (ASF) on älykäs toiminto, joka säätää automaattisesti palamisilman syöttöä arinan läpi. Se tarkoittaa, että luukun voi sulkea heti sytykkeiden sytytyksen jälkeen ja takka on siten täysin riippumaton huoneilmasta. Turvallisuus paranee, kun luukkua ei tarvitse jättää auki takkaa lämmitettäessä.
Boost-toiminnon avulla voit ”pelastaa” melkein sammuneen hiilloksen. Avaat vain vasenta kahvaa, jolloin palotilaan virtaa altapäin uutta happea, joka herättää hiilloksen ja sytyttää uudet puut. Hetken päästä voit taas nauttia kauniista tulesta ja lämmöstä.
Muotoilunsa ja vaimennustoiminnon ansiosta tuhkalaatikko liukuu hiljaisesti ja pehmeästi tyhjennettäessä.
Säädettävät jalat ovat kätevä ominaisuus silloin, jos lattia ei sattuisi olemaan aivan suora.
Conturan takoissa on markkinoiden korkeimpia hyötysuhteita. Contura täyttää vuonna 2022 voimaan astuvan ekosuunnitteludirektiivin päästövaatimukset.
Contura 856 musta mallitakka myynnissä hintaan 2600 € (ovh 3200 €)!
Unelmauuneilta takan lupapalvelut sekä vanhan tulisijan purku ja uuden asennus yli 30 vuoden kokemuksella – myös osamaksulla jopa 12 kk korottomalla maksuajalla!
Contura 810 Style

Contura 810 Style on erittäin suosittu sivulasiton takka. 810 Style on siro, helposti sijoitettava malli, joka mahtuu pienempiinkin tiloihin vaivatta. Se on lisäksi Conturan edullisin malli sekä samalla kompakti ja tehokas!
Contura 810 -takka sopii erinomaisesti kulmaan tai suoralle seinälle asennettuna. Värivaihtoehtoina on musta, harmaa ja valkoinen.
Contura 810 Style on vakiona perinteisellä valurautaluukulla, joka pitää muotonsa suurista lämmönvaihteluiden aiheuttamista rasituksista huolimatta. Halutessasi voit valita G-mallin luukun, joka on valurautarunkoinen luukku mustalla lasiviimeistelyllä.
Contura 810 Style on saatavilla lasi, valurauta- tai vuolukivikannella.
Lisävarusteet:
Savuhormin liitossarja
Kääntölevy
Lämpölevy
Lattialasi
Lattiapelti
Puhallin automatiikalla
Puutilan ovi
TÄMÄ TUOTE ESILLÄ LIIKKEESSÄMME!
Tekniset tiedot:
Korkeus (mm): 950
Leveys (mm): 465
Syvyys (mm): 365
Hormiliitos: Päältä, Takaa
Paino: 80 kg
Teho: 5 kW
Lämmitysala: 120 m²
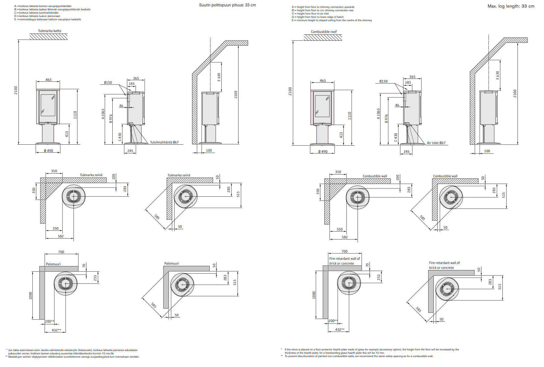
Polttopuiden max. pituus: 33 cm
Savukanavaliitäntä: Ø 150 mm
Palamisilmaliitäntä: Kyllä
Hyötysuhde: 81 %
Contura 800 -takka suoritustasoilmoitus
Contura 810 Style mitat
Contura 810 Style suojaetäisyydet
Contura 820T

Contura 820T Style on siro ja kaunis vuolukivipintainen takka. Vuolukivivuoraus sitoo itseensä lämpöä ja luovuttaa lämpöä myös tulen sammuttua!
Contura 820T -takka sopii erinomaisesti kulmaan tai suoralle seinälle asennettuna. Värivaihtoehtoina on musta ja harmaa.
Contura 820T Style on vakiona perinteisellä valurautaluukulla, joka pitää muotonsa suurista lämmönvaihteluiden aiheuttamista rasituksista huolimatta. Halutessasi voit valita G-mallin luukun, joka on valurautarunkoinen luukku mustalla lasiviimeistelyllä.
Lisävarusteet:
Savuhormin liitossarja
Kääntölevy
Lämpölevy
Lattialasi
Lattiapelti
Puhallin automatiikalla
Puutilan ovi
Tekniset tiedot:
Korkeus (mm): 965
Leveys (mm): 465
Syvyys (mm): 365
Hormiliitos: Päältä, Takaa
Paino: 125 kg
Teho: 5 kW
Lämmitysala: 120 m²
Polttopuiden max. pituus: 33 cm
Savukanavaliitäntä: Ø 150 mm
Palamisilmaliitäntä: Kyllä
Hyötysuhde: 81 %
Contura 800 -takka suoritustasoilmoitus
Contura 820T Style mitat
Contura 820T Style suojaetäisyydet
Contura 856 Style

Contura 856 Style on erittäin suosittu sivulaseilla varustettu kompakti ja tehokas takka.
Contura 856 Style sopii parhaiten suoralle seinälle asennettavaksi suurten sivulasien ja niiden luoman tulinäkyvyyden ansiosta. Värivaihtoehtoina on musta, harmaa ja valkoinen.
Contura 856T Style on sivulaseilla varustettu kompakti ja tehokas kiertoilmatakka, jonka kansi ja sivujen takaosat ovat vuolukiveä.
Contura 856W Style on musta, sivulaseilla varustettu kompakti ja tehokas takka, jolla säästät tilaa kiinnittämällä sen seinään!
Contura 856-sarjan takat ovat vakiona perinteisellä valurautaluukulla, joka pitää muotonsa suurista lämmönvaihteluiden aiheuttamista rasituksista huolimatta. Halutessasi voit valita G-mallin luukun, joka on valurautarunkoinen luukku mustalla lasiviimeistelyllä.
Contura 856 Style on saatavilla lasi, valurauta- tai vuolukivikannella.
Lisävarusteet:
Savuhormin liitossarja
Kääntölevy
Lämpölevy
Lattialasi
Lattiapelti
Puhallin automatiikalla
Puutilan ovi
TÄMÄ TUOTE ESILLÄ LIIKKEESSÄMME!
Tekniset tiedot 856 Style / 856T Style / 856W Style:
Korkeus (mm): 950 / 965 / 697
Leveys (mm): 465 / 465 / 465
Syvyys (mm): 365 / 365 / 365
Hormiliitos: Päältä, Takaa / Päältä, Takaa / Päältä, Takaa
Paino: 77 kg / 105 kg / 67 kg
Teho: 5 kW / 5 kW / 5 kW
Lämmitysala: 120 m² / 120 m² / 120 m²
Polttopuiden max. pituus: 33 cm / 33 cm / 33 cm
Savukanavaliitäntä: Ø 150 mm / Ø 150 mm / Ø 150 mm
Palamisilmaliitäntä: Kyllä / Kyllä / Kyllä
Hyötysuhde: 81 % / 81 % / 81 %
Contura 800 -takka suoritustasoilmoitus
Contura 856 Style mitat
Contura 856 Style suojaetäisyydet
Contura 856T Style mitat
Contura 856T Style suojaetäisyydet
Contura 856W Style mitat
Contura 856W Style suojaetäisyydet
Contura 870 Style

Contura 870 Style on suosittu pilarijalkainen, kompakti ja tehokas takka. Pilarijalan ansiosta tuli on nostettu korkeammalle, jolloin se myös näkyy paremmin huonekalujen yli.
Contura 870 -takka sopii erinomaisesti kulmaan tai suoralle seinälle asennettuna. Värivaihtoehtoina on musta ja valkoinen.
Contura 870 Style on vakiona perinteisellä valurautaluukulla, joka pitää muotonsa suurista lämmönvaihteluiden aiheuttamista rasituksista huolimatta. Halutessasi voit valita G-mallin luukun, joka on valurautarunkoinen luukku mustalla lasiviimeistelyllä.
Contura 870 Style on saatavilla lasi, valurauta- tai vuolukivikannella.
Lisävarusteet:
Savuhormin liitossarja
Kääntölevy
Lämpölevy
Lattialasi
Lattiapelti
Puhallin automatiikalla
Puutilan ovi
Tekniset tiedot:
Korkeus (mm): 1110
Leveys (mm): 465
Syvyys (mm): 365
Hormiliitos: Päältä, Takaa
Paino: 85 kg
Teho: 5 kW
Lämmitysala: 120 m²
Polttopuiden max. pituus: 33 cm
Savukanavaliitäntä: Ø 150 mm
Palamisilmaliitäntä: Kyllä
Hyötysuhde: 81 %
Contura 800 -takka suoritustasoilmoitus
Contura 870 Style mitat
Contura 870 Style suojaetäisyydet
Contura 886 Style

Contura 886 Style on suosittu pilarijalkainen, kompakti ja tehokas takka isoilla sivulaseilla varustettuna. Pilarijalan ansiosta tuli on nostettu korkeammalle, jolloin se myös näkyy paremmin huonekalujen yli.
Contura 886 Style sopii parhaiten suoralle seinälle asennettavaksi, jolloin sivulasien tuomasta tulinäkyvyydestä päästään nauttimaan mahdollisimman paljon. Värivaihtoehtoina on musta ja valkoinen.
Contura 886 Style on vakiona perinteisellä valurautaluukulla, joka pitää muotonsa suurista lämmönvaihteluiden aiheuttamista rasituksista huolimatta. Halutessasi voit valita G-mallin luukun, joka on valurautarunkoinen luukku mustalla lasiviimeistelyllä.
Contura 886 Style on saatavilla lasi, valurauta- tai vuolukivikannella.
Lisävarusteet:
Savuhormin liitossarja
Kääntölevy
Lämpölevy
Lattialasi
Lattiapelti
Puhallin automatiikalla
Puutilan ovi
TÄMÄ TUOTE ESILLÄ LIIKKEESSÄMME!
Tekniset tiedot:
Korkeus (mm): 1100
Leveys (mm): 465
Syvyys (mm): 365
Hormiliitos: Päältä, Takaa
Paino: 82 kg
Teho: 5 kW
Lämmitysala: 120 m²
Polttopuiden max. pituus: 33 cm
Savukanavaliitäntä: Ø 150 mm
Palamisilmaliitäntä: Kyllä
Hyötysuhde: 81 %
Contura 800 -takka suoritustasoilmoitus
Contura 886 Style mitat
Contura 886 Style suojaetäisyydet
Contura 890 Style

Contura 890 Style on erittäin suosittu, korotettu kiertoilmatakka ilman sivulaseja. Takan toimitukseen sisältyy vakiona myös puutilan ovi!
Contura 890 -takka sopii erinomaisesti kulmaan tai suoralle seinälle asennettuna. Värivaihtoehtoina on musta ja valkoinen.
Contura 890T Style on vuolukivikuorella varustettu takka. Kaunis vuolukivikuori toimii myös lämpömakasiinina, joka varaa lämpöä ja luovuttaa sitä myös tulen sammumisen jälkeen. Värivaihtoehtoina on musta ja harmaa.
Contura 890 Style ja 890T Style ovat vakiona perinteisellä valurautaluukulla, joka pitää muotonsa suurista lämmönvaihteluiden aiheuttamista rasituksista huolimatta. Halutessasi voit valita G-mallin luukun, joka on valurautarunkoinen luukku mustalla lasiviimeistelyllä.
Contura 890 Style on saatavilla lasi, valurauta- tai vuolukivikannella.
Lisävarusteet:
Lämpömakasiini 25 kg
Savuhormin liitossarja
Kääntölevy
Lämpölevy
Lattialasi
Lattiapelti
Puhallin automatiikalla
Puutilan ovi
Tekniset tiedot 890 Style / 890T Style:
Korkeus (mm): 1260 / 1275
Leveys (mm): 465 / 465
Syvyys (mm): 365 / 365
Hormiliitos: Päältä, Takaa / Päältä, Takaa
Paino: 90 kg / 150 kg
Teho: 5 kW / 5 kW
Lämmitysala: 120 m² / 120 m²
Polttopuiden max. pituus: 33 cm / 33 cm
Savukanavaliitäntä: Ø 150 mm / Ø 150 mm
Palamisilmaliitäntä: Kyllä / Kyllä
Hyötysuhde: 81 % / 81 %
Contura 800 -takka suoritustasoilmoitus
Contura 890 Style mitat
Contura 890 Style suojaetäisyydet
Contura 890T Style mitat
Contura 890T Style suojaetäisyydet
Contura 896 Style

Contura 896 Style on erittäin suosittu, korotettu takka sivulaseilla varustettuna. Takan toimitukseen sisältyy vakiona myös puutilan ovi!
Contura 896 Style sopii parhaiten suoralle seinälle asennettavaksi, jolloin sivulasien tuomasta tulinäkyvyydestä päästään nauttimaan mahdollisimman paljon. Värivaihtoehtoina on musta ja valkoinen.
Contura 896 Style -takka on vakiona perinteisellä valurautaluukulla, joka pitää muotonsa suurista lämmönvaihteluiden aiheuttamista rasituksista huolimatta. Halutessasi voit valita G-mallin luukun, joka on valurautarunkoinen luukku mustalla lasiviimeistelyllä.
Contura 896 Style on saatavilla lasi, valurauta- tai vuolukivikannella.
Lisävarusteet:
Lämpömakasiini 25 kg
Savuhormin liitossarja
Kääntölevy
Lämpölevy
Lattialasi
Lattiapelti
Puhallin automatiikalla
Puutilan ovi
TÄMÄ TUOTE ESILLÄ LIIKKEESSÄMME!
Tekniset tiedot:
Korkeus (mm): 1260
Leveys (mm): 465
Syvyys (mm): 365
Hormiliitos: Päältä, Takaa
Paino: 87 kg
Teho: 5 kW
Lämmitysala: 120 m²
Polttopuiden max. pituus: 33 cm
Savukanavaliitäntä: Ø 150 mm
Palamisilmaliitäntä: Kyllä
Hyötysuhde: 81 %
Contura 800 -takka suoritustasoilmoitus
Contura 896 Style mitat
Contura 896 Style suojaetäisyydet
Rekisteröi takkasi 3 kuukauden kuluessa ostopäivästä ja Contura myöntää sinulle 10 vuoden tuplatakuun materiaali- ja valmistusvirheiden varalta ja 24 kuukauden takuun palotilan osille, pintaverhoiluille ja sähkökomponenteille!
Lue lisää: https://www.contura.eu/fi-fi/tietoja/tuplatakuu
Hinnat
Hinnat sisältävät alv 25,5 %
HUOM! Tuotekohtaisiin hintoihin lisätään AINA kulloinkin voimassa oleva rahtimaksu.
Contura 810 Style
| Contura 810:1 Style valurautaluukku, musta tai harmaa, kansi lakattua alumiinia | 2 200 € |
| Contura 810:2 Style valurautaluukku, musta, alumiinikansi lasipäällisellä | 2 300 € |
| Contura 810:3 Style valurautaluukku, musta tai harmaa, vuolukivikansi | 2 400 € |
| Contura 810 AIR Style sisäänrakennettu paloilmakanava, valurautaluukku, musta, kansi lakattua alumiinia | 2 500 € |
| Contura 810G:1 Style lasiluukku, musta tai harmaa, kansi lakattua alumiinia | 2 400 € |
| Contura 810G:2 Style lasiluukku, musta, alumiinikansi lasipäällisellä | 2 500 € |
| Contura 810G:3 Style lasiluukku, musta tai harmaa, vuolukivikansi | 2 600 € |
| Contura 810G AIR Style sisäänrakennettu paloilmakanava, valurautaluukku, musta, kansi lakattua alumiinia | 2 700 € |
| Contura 810G:1 Style lasiluukku, valkoinen, kansi lakattua alumiinia | 2 600 € |
| Contura 810G:2 Style lasiluukku, valkoinen, alumiinikansi lasipäällisellä | 2 700 € |
| Contura 810G AIR Style sisäänrakennettu paloilmakanava, valurautaluukku, valkoinen, kansi lakattua alumiinia | 2 900 € |
| Contura 810W:1 Style valurautaluukku, musta tai harmaa, kansi lakattua alumiinia | 2 400 € |
| Contura 810W:2 Style valurautaluukku, musta, alumiinikansi lasipäällisellä | 2 500 € |
| Contura 810W:3 Style valurautaluukku, musta tai harmaa, vuolukivikansi | 2 600 € |
Contura 820 Style
| Contura 820T Style vuolukivi, valurautaluukku, musta tai harmaa | 3 200 € |
| Contura 820TG Style vuolukivi, lasiluukku, musta | 3 400 € |
Contura 856 Style
| Contura 856:1 Style valurautaluukku, musta tai harmaa, kansi lakattua alumiinia | 2 900 € |
| Contura 856:2 Style valurautaluukku, musta, alumiinikansi lasipäällisellä | 3 000 € |
| Contura 856:3 Style valurautaluukku, musta tai harmaa, vuolukivikansi | 3 100 € |
| Contura 856 AIR Style sisäänrakennettu paloilmakanava, valurautaluukku, musta, kansi lakattua alumiinia | 3 200 € |
| Contura 856G:1 Style lasiluukku, musta tai harmaa, kansi lakattua alumiinia | 3 100 € |
| Contura 856G:2 Style lasiluukku, musta, alumiinikansi lasipäällisellä | 3 200 € |
| Contura 856G:3 Style lasiluukku, musta tai harmaa, vuolukivikansi | 3 300 € |
| Contura 856G AIR Style sisäänrakennettu paloilmakanava, valurautaluukku, musta, kansi lakattua alumiinia | 3 400 € |
| Contura 856G:1 Style lasiluukku, valkoinen, kansi lakattua alumiinia | 3 300 € |
| Contura 856G:2 Style lasiluukku, valkoinen, alumiinikansi lasipäällisellä | 3 400 € |
| Contura 856G AIR Style sisäänrakennettu paloilmakanava, valurautaluukku, valkoinen, kansi lakattua alumiinia | 3 600 € |
| Contura 856T Style valurautaluukku, musta tai harmaa, kansi ja sivujen takaosat vuolukiveä | 3 300 € |
| Contura 856TG Style lasiluukku, musta, kansi ja sivujen takaosat vuolukiveä | 3 500 € |
| Contura 856W:1 Style valurautaluukku, musta tai harmaa, kansi lakattua alumiinia | 2 900 € |
| Contura 856W:2 Style valurautaluukku, musta, alumiinikansi lasipäällisellä | 3 000 € |
| Contura 856W:3 Style valurautaluukku, musta tai harmaa, vuolukivikansi | 3 100 € |
| Contura 856WG:1 Style lasiluukku, musta tai harmaa, kansi lakattua alumiinia | 3 100 € |
| Contura 856WG:2 Style lasiluukku, musta, alumiinikansi lasipäällisellä | 3 200 € |
| Contura 856WG:3 Style lasiluukku, musta tai harmaa, vuolukivikansi | 3 300 € |
| Contura 856WG:1 Style lasiluukku, valkoinen, kansi lakattua alumiinia | 3 300 € |
| Contura 856WG:2 Style lasiluukku, valkoinen, alumiinikansi lasipäällisellä | 3 400 € |
Contura 870 Style
| Contura 870:1 Style valurautaluukku, musta tai harmaa, kansi lakattua alumiinia | 2 600 € |
| Contura 870:2 Style valurautaluukku, musta, alumiinikansi lasipäällisellä | 2 700 € |
| Contura 870:3 Style valurautaluukku, musta tai harmaa, vuolukivikansi | 2 800 € |
| Contura 870G:1 Style lasiluukku, musta tai harmaa, kansi lakattua alumiinia | 2 800 € |
| Contura 870G:2 Style lasiluukku, musta, alumiinikansi lasipäällisellä | 2 900 € |
| Contura 870G:3 Style lasiluukku, musta tai harmaa, vuolukivikansi | 3 000 € |
| Contura 870G:1 Style lasiluukku, valkoinen, kansi lakattua alumiinia | 3 000 € |
| Contura 870G:2 Style lasiluukku, valkoinen, alumiinikansi lasipäällisellä | 3 100 € |
Contura 886 Style
| Contura 886:1 Style valurautaluukku, musta tai harmaa, kansi lakattua alumiinia | 2 900 € |
| Contura 886:2 Style valurautaluukku, musta, alumiinikansi lasipäällisellä | 3 000 € |
| Contura 886:3 Style valurautaluukku, musta tai harmaa, vuolukivikansi | 3 100 € |
| Contura 886G:1 Style lasiluukku, musta tai harmaa, kansi lakattua alumiinia | 3 100 € |
| Contura 886G:2 Style lasiluukku, musta, alumiinikansi lasipäällisellä | 3 200 € |
| Contura 886G:3 Style lasiluukku, musta tai harmaa, vuolukivikansi | 3 300 € |
| Contura 886G:1 Style lasiluukku, valkoinen, kansi lakattua alumiinia | 3 300 € |
| Contura 886G:2 Style lasiluukku, valkoinen, alumiinikansi lasipäällisellä | 3 400 € |
Contura 890 Style
| Contura 890:1 Style valurautaluukku, musta tai harmaa, kansi lakattua alumiinia | 3 100 € |
| Contura 890:2 Style valurautaluukku, musta, alumiinikansi lasipäällisellä | 3 200 € |
| Contura 890:3 Style valurautaluukku, musta tai harmaa, vuolukivikansi | 3 300 € |
| Contura 890 AIR Style sisäänrakennettu paloilmakanava, valurautaluukku, musta, kansi lakattua alumiinia | 3 400 € |
| Contura 890G:1 Style lasiluukku, musta tai harmaa, kansi lakattua alumiinia | 3 300 € |
| Contura 890G:2 Style lasiluukku, musta, alumiinikansi lasipäällisellä | 3 400 € |
| Contura 890G:3 Style lasiluukku, musta tai harmaa, vuolukivikansi | 3 500 € |
| Contura 890G AIR Style sisäänrakennettu paloilmakanava, valurautaluukku, musta, kansi lakattua alumiinia | 3 600 € |
| Contura 890G:1 Style lasiluukku, valkoinen, kansi lakattua alumiinia | 3 500 € |
| Contura 890G:2 Style lasiluukku, valkoinen, alumiinikansi lasipäällisellä | 3 600 € |
| Contura 890G AIR Style sisäänrakennettu paloilmakanava, valurautaluukku, valkoinen, kansi lakattua alumiinia | 3 800 € |
| Contura 890T Style valurautaluukku, musta tai harmaa, kansi ja kyljet vuolukiveä | 3 900 € |
| Contura 890TG Style lasiluukku, musta, kansi ja kyljet vuolukiveä | 4 100 € |
Contura 896 Style
| Contura 896:1 Style valurautaluukku, musta tai harmaa, kansi lakattua alumiinia | 3 500 € |
| Contura 896:2 Style valurautaluukku, musta, alumiinikansi lasipäällisellä | 3 600 € |
| Contura 896:3 Style valurautaluukku, musta tai harmaa, vuolukivikansi | 3 700 € |
| Contura 896 AIR Style sisäänrakennettu paloilmakanava, valurautaluukku, musta, kansi lakattua alumiinia | 3 800 € |
| Contura 896G:1 Style lasiluukku, musta tai harmaa, kansi lakattua alumiinia | 3 700 € |
| Contura 896G:2 Style lasiluukku, musta, alumiinikansi lasipäällisellä | 3 800 € |
| Contura 896G:3 Style lasiluukku, musta tai harmaa, vuolukivikansi | 3 900 € |
| Contura 896G AIR Style sisäänrakennettu paloilmakanava, valurautaluukku, musta, kansi lakattua alumiinia | 4 000 € |
| Contura 896G:1 Style lasiluukku, valkoinen, kansi lakattua alumiinia | 3 900 € |
| Contura 896G:2 Style lasiluukku, valkoinen, alumiinikansi lasipäällisellä | 4 000 € |
| Contura 896G AIR Style sisäänrakennettu paloilmakanava, valurautaluukku, valkoinen, kansi lakattua alumiinia | 4 200 € |
Lisävarusteet Contura 800 Style -sarja:
| Lattialaatta terästä, harmaa tai musta (vain musta malleihin 870 ja 886) | 110 € |
| Lattialasi lyhyt | 110 € |
| Lattialasi lyhyt, musta screenprint | 110 € |
| Teräksinen lattiasuoja kääntölevyä käytettäessä 90 astetta (malleihin 870 ja 886), musta/harmaa | 130 € |
| Teräksinen lattiasuoja kääntölevyä käytettäessä 180/360 astetta (malleihin 870 ja 886), musta/harmaa | 160 € |
| Lämpölevy vain takaliitännällä asennettuihin takkoihin, musta (malleihin 810, 810W, 820T, 856, 856T, 856W, 870, 886) | 70 € |
| Kulma-asennuskonsoli (malleihin 810W, 856W) | 190 € |
| Pehmeästi sulkeutuva puutilan ovi (malleihin 810, 820T, 856, 856T – sisältyy vakiona malleissa 890, 890T, 896), harmaa/musta, valkoinen vain malliin 810 | 130 € |
| Lämpömakasiini 25 kg (malleihin 890, 890T, 896) | 120 € |
| Kääntölevy musta, vain teräksinen lattiasuoja käytettävissä (malleihin 870, 886) | 300 € |
| Kääntöliitin | 60 € |
| Palamisilmaliitäntä kääntölevyä varten (joustava alumiiniputki, kondensioeriste 1000 mm, muunnosliitin halkaisija 65-100 mm, letkunkiristäjät, automaattinen sulkulevy) | 90 € |
| Palamisilmaliitäntä | 100 € |
| Palamisilmaliitäntä, seinäkiinnitteisille malleille | 120 € |
| Liitäntäsarja valmiisen hormiin,suora taaksepäin (muurauasliitin, tiivistemateriaali, peiterengas, suora putki 250 mm), harmaa | 60 € |
| Liitäntäsarja valmiisen hormiin,suora taaksepäin (muurauasliitin, tiivistemateriaali, peiterengas, suora putki 250 mm), musta | 60 € |
| Liitäntäsarja valmiisen hormiin, 45 astetta taaksepäin (muurauasliitin, tiivistemateriaali, peiterengas, suora putki 250 mm, kulmaputki 45 astetta), harmaa | 110 € |
| Liitäntäsarja valmiisen hormiin, 45 astetta taaksepäin (muurauasliitin, tiivistemateriaali, peiterengas, suora putki 250 mm, kulmaputki 45 astetta), musta | 110 € |
| Taivutettu eristämätön liitäntäputki 320mm nuohousluukulla, musta | 142 € |
| Taivutettu eristämätön liitäntäputki 320mm nuohousluukulla, harmaa | 142 € |
| Taivutettu eristämätön liitäntäputki 700mm nuohousluukulla, musta | 161 € |
| Taivutettu eristämätön liitäntäputki 700mm nuohousluukulla, harmaa | 161 € |
Valmistajan kotisivut: https://www.contura.eu/fi-fi